ララプレイス玉造パルク 702
7.251万円
管理 / 共益費 7,490円
大阪環状線「玉造」駅徒歩4分
地下鉄長堀鶴見緑地「玉造」駅徒歩7分
大阪環状線「鶴橋」駅徒歩12分
【外観】
-
バストイレ別
-
室内洗濯機置場
-
TVモニタ付きインターホン
-
独立洗面台
-
浴室乾燥機
-
オートロック
-
エレベーター
-
ネット使用料無料

キッチン
風呂
洗面所
玄関
洋室- 保証金
- -
- 敷引 / 償却
- - / -
- 敷金積み増し
- -
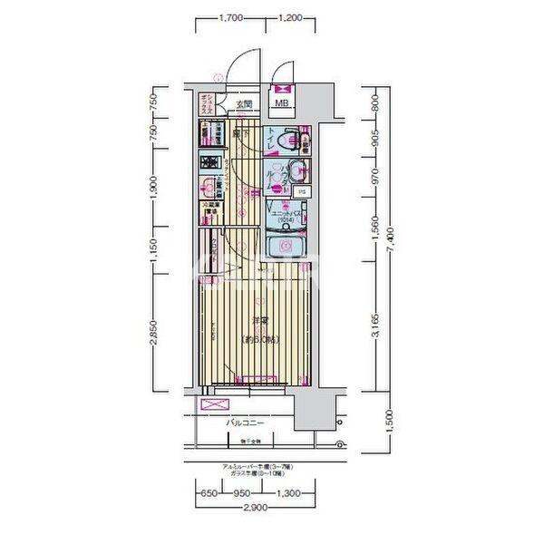
- 間取り / 詳細
- 1K
洋室 6.0帖 - 向き
- 西
- 専有面積
- 21.09㎡
- バルコニー
(テラス)面積 - -
- 所在階 / 階建て
- 7階 / 10階建
- 建物構造
- 鉄筋コンクリート
- 築年月
- 2020年11月(築5年)
- 種別
- 賃貸マンション
- 保険会社 / 料金
- 有 20,000円 / 2年
- 保証会社 / 料金
- 必加入 / 日本セーフティー
都度ご確認ください。
プレサンスギャランティ 月額合計の50% 月1.5% - 駐車場
- 無 -
- 現況
- 空家
- 入居可能時期
- 即時
- その他条件
- 鍵交換代:2万9,700円 室内清掃費用:3万5,000円 プレサポ24:990円(月額)
- 設備条件
-
- ペット相談 / 陽当り良好 / 閑静な住宅地 / 分譲タイプ / 眺望良好 / 法人可 / 室内洗濯機置場 / フローリング / ベランダ / バルコニー / 都市ガス / 公営水道 / 公共下水 / 24時間換気システム / エレベーター / 電気有 / 照明器具付き / 駐輪場 / 敷地内ごみ置き場 / 外観タイル張り / ガスコンロ / コンロ2口以上 / システムキッチン / バス・トイレ別 / 浴室乾燥機 / 温水洗浄便座 / 洗面台 / 洗髪洗面化粧台 / 独立洗面台 / 浴槽 / エアコン / シューズボックス / BS / CATV / インターネット対応 / ネット使用料無料 / オートロック / TVモニタ付インターホン / 宅配ボックス / 防犯カメラ / 初期費用カード決済可
- 契約期間
- 1年
- 賃貸区分
- 一般
- 更新料
- 1.1万円(新賃料)
- 更新事務手数料
- -
- 総戸数
- 54戸
- 特優賃
- -
- 取引態様
- 仲介
- 物件番号
- 98437632
- 管理コード
- -
- 情報更新日
- 2025年12月09日
- 次回更新予定日
- 2025年12月23日
- 取扱会社
-
- 株式会社KARIRU
- 大阪府大阪市都島区東野田町2丁目9-13 松和京橋ビル 4F
- TEL:06-6379-5102
- 大阪府知事 (1) 第64547号
- 備考
- 大阪市東成区エリアでの住まいなら、住み心地も快適な「ララプレイス玉造パルク」はいかがでしょうか。東小橋公園まで265mです。共用部には宅配ボックスを設置しているため、荷物の受け取りのために早く帰宅する必要がありません。駐輪場付きの物件です。賃貸住宅情報をお探しの方で、お困りでしたら当社にご連絡下さい。お客様がご希望することや不明な点についてお伺いいたします。東小橋公園まで265mです。収納はクロゼット・シューズボックスなどが備え付けられているので、衣類や日用品の収納に重宝します。オートロック機能があるので来訪者は基本的に玄関先まで来ることがなく安心して生活できます。当社は大阪市東成区に密着しており、多種多様な賃貸住宅情報をお取り扱いしております。ご希望の条件がございましたら、当社へお問い合わせください(^o^)
-
コンビニエンスストア
セブンイレブン ハートインビエラ玉造店
189m(3分)
-
公園
東小橋公園
265m(4分)
-
コンビニエンスストア
ローソン 東小橋二丁目店
290m(4分)
-
コンビニエンスストア
セブンイレブン ハートインJR玉造駅改札口店
391m(5分)
-
公園
真田山公園
766m(10分)
-
スーパー
スーパー玉出 玉造店
812m(11分)
-
ホームセンター
ロイヤルホームセンター 森ノ宮店
889m(12分)
物件の特徴
セールスポイント
大阪市東成区エリアでの住まいなら、住み心地も快適な「ララプレイス玉造パルク」はいかがでしょうか。東小橋公園まで265mです。室内設備は洗面化粧台・浴室乾燥機など充実した設備を備え付けています。築5年以内と築浅なので、内装も外観もキレイです。新生活のスタートにはお部屋探しが大切。当社は大阪市東成区や大阪環状線玉造付近で探しているあなたを全力でサポートします(^^)
ポイント
フローリング 眺望良好 照明付き IT重説 対応物件 全居室洋室
担当者のコメント
パノラマ画像
基本情報
設備条件
その他
ララプレイス玉造パルクの他の部屋
周辺施設
近隣の物件
ララプレイス玉造パルク
7.251万円
7,490円
1K(21.09㎡)
筒井 智之