アート城北駅前 103
7万円
管理 / 共益費 6,000円
おおさか東線「城北公園通」駅徒歩4分
阪急千里線「柴島」駅徒歩26分
地下鉄谷町線「千林大宮」駅徒歩29分
【外観】
-
バストイレ別
-
室内洗濯機置場
-
TVモニタ付きインターホン
-
独立洗面台
-
浴室乾燥機
-
オートロック
-
ネット使用料無料

風呂
洗面所
キッチン
リビング
洋室- 保証金
- 0ヶ月
- 敷引 / 償却
- - / -
- 敷金積み増し
- -
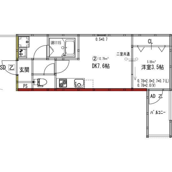
- 間取り / 詳細
- 1LDK
- 向き
- 東
- 専有面積
- 29.44㎡
- バルコニー
(テラス)面積 - -
- 所在階 / 階建て
- 1階 / 3階建
- 建物構造
- 木造
- 築年月
- 2024年2月(築2年)
- 種別
- アパート
- 保険会社 / 料金
- 有 / -
- 保証会社 / 料金
- 必加入 / その他
初回保証料80% 月額2,490円
都度ご確認ください。 - 駐車場 / 月額
- 無 / -
- 現況
- 賃貸中
- 入居可能時期
- 2026年06月30日
- その他条件
- 契約事務手数料:2万2,000円 鍵交換代:3万3,000円 室内清掃費用:3万8,500円 駐輪場利用料 :330円(月額) バイク置場利用料 :3,300円(月額)
- 設備条件
-
- 陽当り良好 / 閑静な住宅地 / 保証人不要 / 2人入居可 / バリアフリー / 法人可 / 室内洗濯機置場 / フローリング / ベランダ / バルコニー / 都市ガス / 公営水道 / 公共下水 / 24時間換気システム / 電気有 / 照明器具付き / 駐輪場 / バイク置場あり / 敷地内ごみ置き場 / 外観タイル張り / IHクッキングヒーター / コンロ2口以上 / システムキッチン / オープンキッチン / バス・トイレ別 / 追焚機能浴室 / 浴室乾燥機 / 温水洗浄便座 / 洗面台 / 洗髪洗面化粧台 / 独立洗面台 / 浴槽 / エアコン / シューズボックス / インターネット対応 / ネット使用料無料 / オートロック / TVモニタ付インターホン / 防犯カメラ / 角部屋 / 初期費用カード決済可
- 契約期間
- 2年
- 賃貸区分
- 一般
- 更新料
- 0ヶ月(新賃料)
- 更新事務手数料
- -
- 総戸数
- 12戸
- 特優賃
- -
- 取引態様
- 仲介
- 物件番号
- 103102254
- 管理コード
- -
- 情報更新日
- 2026年04月14日
- 次回更新予定日
- 2026年04月28日
- 取扱会社
-
- 株式会社KARIRU
- 大阪府大阪市都島区東野田町2丁目9-13 松和京橋ビル 4F
- TEL:06-6379-5102
- 大阪府知事 (1) 第64547号
- 備考
- 北おおさか信用金庫赤川町支店が歩いて235mのところにあります。共用部には敷地内ごみ置き場・バイク置場などが揃っております。収納はシューズボックス・クロゼットなどが備え付けられているので、衣類や日用品の収納に重宝します。大阪市旭区での住まい探しを当社スタッフがサポート致します。まずはご希望条件などをお申しつけください。それを元にお客様に合ったお住まいをご紹介いたします。おおさか東線城北公園通周辺への引っ越しをお考えなら「アート城北駅前」。セキュリティ面は、TVインターホン・オートロックなどを設置しているので安全面でも優れております。収納はクロゼット・シューズボックスなどが備え付けられているので、衣類や日用品の収納に重宝します。当社ではおおさか東線城北公園通周辺の賃貸情報を数多く取り扱っております。引っ越しを検討しているなら、お気軽にご連絡ください(^^)
-
銀行
北おおさか信用金庫赤川町支店
235m(3分)
-
小学校
大阪市立城北小学校
250m(4分)
-
コンビニエンスストア
ファミリーマート 大東町二丁目店
308m(4分)
-
銀行
三井住友銀行赤川町支店
309m(4分)
-
コンビニエンスストア
ローソン 城北公園通駅前店
374m(5分)
-
コンビニエンスストア
ローソン 城北公園通駅西店
477m(6分)
-
ドラッグストア
ジャパン 都島店
730m(10分)
-
小学校
大阪市立大東小学校
750m(10分)
-
ドラッグストア
スギ薬局 生江店
797m(10分)
-
スーパー
mandai(万代) 都島友渕店
887m(12分)
-
小学校
大阪市立生江小学校
973m(13分)
-
警察
旭警察署
1118m(14分)
-
スーパー
MARUYASU(マルヤス) 都島店
1133m(15分)
-
公園
友渕公園
1156m(15分)
-
ショッピングセンター
BELLFA(ベルファ都島ショッピングセンター)
1173m(15分)
-
スーパー
食品館アプロ 中宮店
1264m(16分)
-
大学
私立大阪工業大学
1582m(20分)
-
市役所・区役所
大阪市旭区役所
1646m(21分)
-
公園
旭公園
1679m(21分)
物件の特徴
セールスポイント
こだわりポイント満載のアート城北駅前。北おおさか信用金庫赤川町支店まで235mです。室内設備は洗面所独立・浴室乾燥機など豊富に揃っており、過ごしやすいお部屋になっております。家賃7.1万円でおすすめの物件です。住まい探しの際には、実際に住んでみた時のことを想像しながら進めていくことが大事です。より良い住まいをご提供致します。
ポイント
洗面所独立 全居室フローリング 照明付き 防犯カメラ 駅徒歩10分以内
担当者のコメント
パノラマ画像
基本情報
設備条件
その他
周辺施設
近隣の物件
よく見られている物件
アート城北駅前
7万円
6,000円
1LDK(29.44㎡)
筒井 智之